Casa semindipendente in vendita

San Miniato, Via Pietro Rondoni
€ 180.000
5 locali 5 locali
80 Mq 80 Mq
1 bagno 1 bagno

Casa semindipendente in vendita

San Miniato, Via Pietro Rondoni

Descrizione annuncio

SAN MINIATO ALTO

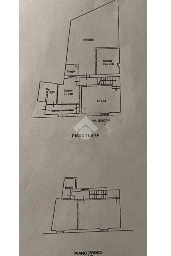
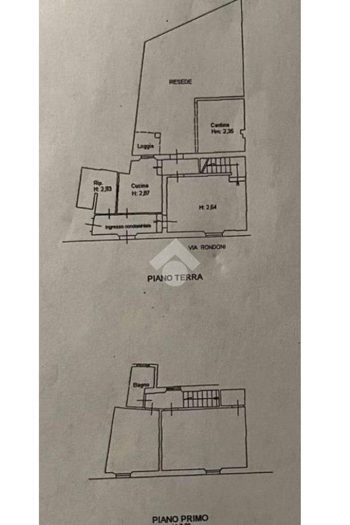
In zona centrale, proponiamo immobile di cinque vani di circa 80 mq.

Entrando dal portone si ha il piano terra composto da ampio soggiorno, luminosa cucina abitabile con dispensa, ripostiglio e camera da letto.

Proseguendo, tramite scale interne, si ha il piano primo composto da altre due camere da letto, di cui una con ripostiglio/cabina armadio in camera e bagno finestrato con doccia.

Completano l'immobile un giardino accessibile dalla zona giorno al piano terra, dove è presente anche la zona lavandera e una terrazza abitabile accessibile con scale esterne dal giardino.

E' presente il sistema di climatizzazione.

Ristrutturato internamente nel 2006.

Tetto rifatto nel 2019.

Mostra tutto

Nelle vicinanze

Trasporto pubblico Trasporto pubblico
stazione di San Miniato-Fucecchio
stazione di San Miniato-Fucecchio
3,0 Km
San Miniato Fucecchio
San Miniato Fucecchio
3,0 Km
La Scala via Trento Scuole
La Scala via Trento Scuole
2,1 Km
La Scala Palazzo Torto
La Scala Palazzo Torto
2,2 Km
Ricariche auto elettriche Ricariche auto elettriche
SAN MINIATO Parcheggio Piazza L. Benvenuti | ENELX
1,3 Km
San Miniato Covina | EnelX
1,8 Km
COOP San Miniato | EnelX
2,3 Km
Scuole Scuole
Scuole
840 m
ITC «Carlo Cattaneo»
1,2 Km
Scuola Primaria G. Giusti
1,5 Km
Liceo Scientifico G. Marconi
2,1 Km
Farmacia Farmacia
Farmacia La Scala
1,5 Km
Farmacia Comunale
2,3 Km
Ospedali Ospedali
Ospedale degli Infermi
580 m
Supermercati Supermercati
Pam
2,3 Km
Coop
2,3 Km
Negozi Negozi
Negozi
10 m
Il cantuccio di federico
280 m
Le Spose di Mori
1,5 Km
Panetteria Focacceria
1,7 Km
Mode
2,3 Km
Bar Bar
The Tower Bar
430 m
Bar Pasticceria Benvenuti
1,8 Km
Giannoni
1,9 Km
Estrò Caffè
2,2 Km
Ristoranti Ristoranti
La Griglia
90 m
Pepenero
560 m
Il Convio
1,1 Km
Soul Kitchen
1,9 Km
Papaveri e Papere
1,9 Km
Mostra tutto

Caratteristiche

Rif.:
61182420
Piano:
Su più livelli di 2
Totale piani:
2
Terrazzi:
1
Camere da letto:
3
Arredamento:
Assente
Mostra tutto
Prezzo Prezzo
€ 180.000
Rata mutuo Rata mutuo
€ 853 / mese
Spese annue Spese annue
€ 0
Proponi il tuo prezzoProponi il tuo prezzo

Classe Energetica

F
F
F
F
F
F
F
F
F
EP globale non rinnovabile:
265.90 kW h/m² anno
EP globale rinnovabile:
3.80 kW h/m² anno
EP invernale del fabbricato:
EP estiva del fabbricato:
Anno di costruzione:
1960
Riscaldamento:
Autonomo
Tipo impianto:
A radiatori
Tipo alimentazione:
Metano

Ti interessa visionare l'immobile?

Fissa un appuntamento  Fissa un appuntamento

Richiedi informazioni

Clicca su Leggi per aprire l'informativa
* Questi campi sono obbligatori

Calcola il tuo mutuo

Semplice e senza impegno
Anticipo

( % )
Mutuo

( % )

pochi semplici passi

inserisci i tuoi dati
Questionario completato
Grazie per aver richiesto un appuntamento senza impegno con un nostro Consulente del Credito e Assicurativo.

Hai inserito correttamente tutti i dati necessari e a breve riceverai una e-mail con un link da convalidare per inviare i tuoi dati.
Affiliato
Studio San Miniato Sas
Largo Don Pino Puglisi, 6 56028 San Miniato (PI)

Il nostro staff


  • Ginevra Giovannini
    Affiliata

  • Greta Barsotti
    Collaboratrice
Largo Don Pino Puglisi, 6 56028 San Miniato (PI)
Zona: San Miniato-Ponte a Egola
Mostra su mappa
Affiliato
Studio San Miniato Sas
Largo Don Pino Puglisi, 6 56028 San Miniato (PI)

2026 Tecnocasa Franchising S.p.A. - P. IVA 08365160152 - Via Monte Bianco 60/A 20089 Rozzano (MI). Ogni agenzia ha un proprio titolare ed è autonoma. Privacy policy | Policy utilizzo | Cookie policy